Professionell konsulttjänst inom företagsledning och byggprojektering

Laveeta Consulting AB erbjuder skräddarsydda tjänster inom företagsledning, projektledning och processuppbyggnad samt byggprojektering. Vi strävar efter att leverera en personlig och professionell service.

Passion för livsmedels- och bioteknik och bygg

Laveeta Consulting AB startades 2015 som ett småskaligt konsultföretag med fokus på företagsledning, projektledning, processuppbyggnad och utbildning inom områdena livsmedels- och bioteknikindustri. Med tiden har vi utvidgat vår verksamhet till att även inkludera byggprojektering. Vår ambition är att leverera en personlig och professionell service. Kontakta oss för skräddarsydda lösningar.

Våra Tjänster

Vi erbjuder skräddarsydda konsulttjänster.

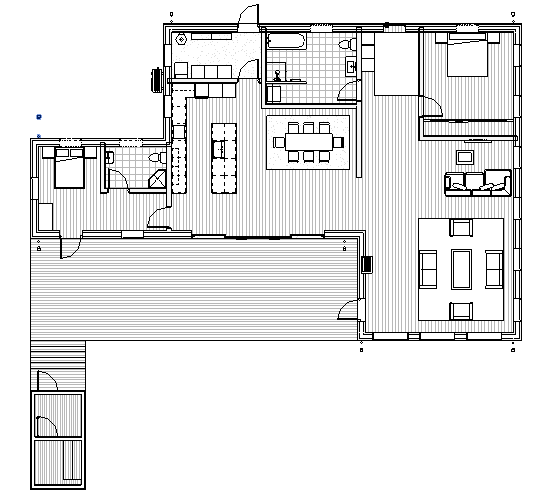
Bygglovshandlingar

Framtagning av fackmannamässiga bygglovsritningar och andra handlingar för olika projekt.

Pris efter typ av projekt och krav. Se exempelpris nedan.

Ledning och process

Stöd för effektiv företagsledning, projektledning och processuppbyggnad inom livsmedels- och bioteknikindustri.

Pris efter förfrågan och beroende på uppdrag.


Exempelpris för bygglovshandlingar

Prissättning varierar beroende på projektets storlek och Din kommuns krav.

Kontakta oss med detaljer för Ditt projekt och få ett skräddarsytt prisförslag.

Grundpaket Bygglov Hus

Situationsplan, planritningar, sektionsritningar och fasadritningar.

7 000 - 20 000 SEK

Bygglov Tillbyggnad/Garage/Uterum

Situationsplan, planritningar, sektionsritningar och fasadritningar.

5 000 - 15 000 SEK

Andra handlingar och ritningar

Ansökan om bygglov, detaljritningar, konstruktionsritningar, renderingar m.m.

FRÅN 1 500 SEK

Varför Välja Laveeta Consulting?

Din pålitliga partner för professionella och personliga konsulttjänster.

Bred Expertis

Vi erbjuder kunskap och erfarenhet inom livsmedels- och bioteknikindustrin samt byggprojektering.

Personlig Service

Vår ambition är att ge Dig en personlig och skräddarsydd lösning.

Erfarenhet

Sedan 2015 har vi hjälpt företag och privatpersoner att växa och utvecklas.

Flexibla Tjänster

Vi anpassar våra tjänster efter Dina specifika behov och krav.

Kontakta oss

Här hittar Du vår kontaktinformation för att enkelt nå oss.

E-post

Vi svarar gärna på Dina frågor via e-post: info@laveeta.se

Adress

Månvägen 16, YSTAD

Vanliga Frågor

Här hittar Du svar på vanliga frågor om våra tjänster.

Vilka tjänster erbjuder Laveeta Consulting AB?

Vi erbjuder konsulttjänster inom företagsledning, projektledning, livsmedel, bioteknik och byggprojekt.

Var ligger Laveeta Consulting AB?

Vår verksamhet är framförallt belägen i södra Skåne, men kan vid behov arbeta i andra områden.

Hur kontaktar jag er för konsultation?

Du kan nå oss via e-post på info@laveeta.se för att diskutera Dina behov.

Vilka byggprojekt kan ni hjälpa till med?

Vi hjälper till med bygglovsritningar och handlingar för enklare byggprojekt som t.ex. enbostadshus och fritidshus.

Kontakta oss idag

Skicka oss ett mail på info@laveeta.se för skräddarsydda konsulttjänster inom företagsledning och projektledning samt byggprojektering.